Residência Cascatas
![]() |
| IX Grande Prêmio de Arquitetura - Editora Flex Eventos Categoria: Projeto Residencial |
O projeto volta a residência
para o interior do lote, resguardo-a em relação a rua através de um enorme
painel de ladrilho hidráulico. Ao platô principal, situado próximo ao centro do
lote, foi destinado às áreas sociais, de serviço e de lazer. A piscina, à
frente, delimita o platô ao restante do terreno. A área íntima está no pavilhão
superior, que “apoia-se” perpendicularmente ao pavilhão social. Os espaços fluidos
e abertos sempre remetem a paisagem como plano de fundo. Quanto a insolação, as
aberturas e os sistemas de fechamentos foram estudados a fim de dar conforto
térmico para os ambientes. Na fachada frontal, a abertura alta, acima do
painel, propicia a iluminação do período matutino, onde os moradores poderão
abrir as portas dos dormitórios para receber a luz. Na fachada posterior, as
aberturas ganharão grandes painéis de madeira para vedação. Ao abrirem, estes
acabam virando brises verticais, bloqueando parte do excesso de luz no período
vespertino. A ventilação cruza o pavilhão íntimo pelas aberturas posterior e
frontal, garantindo um ambiente arejado e renovado. Área total da residência: 1.251m². Área útil: 505,79m².
Residência Roland I
Residência com 184m² de área útil implantada em terreno de 275m².
O projeto busca racionalizar toda a infraestrutura necessária. O núcleo de serviços (banheiros, cozinha, área de serviço e gás) concentra-se ao redor de um shaft por onde a tubulação é distribuida desde a caixa d’água até a saída de esgoto.
Buscou-se funcionalidade do programa com ambientes confortáveis e práticos. As aberturas foram distribuídas a fim de garantir iluminação e ventilação para toda a residência.
No pavimento térreo encontra-se uma cozinha integrada com as salas de jantar, estar e lavabo, mas com acesso direto para a área de serviço e sanitário de serviço. As salas são contornadas por duas varandas com um espaço gourmet. O pavimento superior conta com duas suítes, sendo uma master e dois dormitórios. Além de um banheiro social e espaço para escritório e roupeiros.
Com formas retas a arquitetura da residência possui pregnância na forma e relevância no entorno.





FICHA TÉCNICA
arquitetos
Beatriz Martinhão e Rafael Neves
2011
local: Limeira-SP
Residência Negra
Residência com 168m² de área útil implantada em terreno de 275m².
O projeto setorizou os ambientes em dois níveis. A lâmina superior concentra os espaços íntimos e os pavilhões inferiores, os espaços sociais e de serviço. Toda a infraestrutura foi locada de forma racional, aproveitando prumadas.
A residência é composta de três suítes, um escritório, salas de estar e jantar, espaço gourmet e espaços de serviço.
A arquitetura segue o conceito contemporâneo da casa 01, diferenciado em termos de conceito.






FICHA TÉCNICA
arquitetos
Beatriz Martinhão e Rafael Neves
2011
local: Limeira-SP
Residência Câmara
Residência com 478,70m² de área útil implantada em terreno de 1000,00m².
O projeto de intervenção na antiga residência buscou suavizar a robustez construtiva anterior e interiorizar a paisagem externa.
Foi proposta a demolição de várias paredes a fim de aproveitar melhor o espaço interno do lote assim como, melhorar os usos internos da casa e o seu conforto ambiental.
A antiga garagem cedeu lugar a uma ampla sala de estar integrada com a antiga sala. O acesso a residência foi um ponto importante de demarcação da “nova” casa. Construída aquém do recuo exigido, e disposta em um nível baixo em relação à rua, a necessidade de um elemento integrador se fez necessária. A passarela cumpre o papel de integrar a residência ao entorno, de sinalizar o caminho ao acesso e de preservar o amplo espaço frontal para a manutenção e visualização da área verde. Recomendamos a plantação de grandes árvores na área do jardim frontal, remodelada, para compor a massa verde do lote vizinho. Garagem e estúdio compõem o programa abaixo da passarela.
Buscou-se funcionalidade do programa com ambientes confortáveis e práticos. O conceito foi de valorizar ao máximo o lote, dispondo de boas áreas de circulação. A antiga cozinha aumentou e se integrou ao espaço de lazer.
A piscina proposta contribuirá ao clima bucólico do quintal. No pavimento superior, o terraço projetado integrará totalmente os espaços íntimos à mata vizinha. O prolongamento do “bloco” posterior, permitiu o aumento da suíte master e a criação de um amplo terraço envolto das aberturas da fachada, que lembram molduras enquadrando a natureza local. A escada espaçosa central foi removida tornando-se um escritório. A remodelação da parte frontal da casa permitiu o acréscimo de mais uma suíte. Na fachada, um amplo plano branco fecha o espaço interno, preservando a intimidade familiar e, confronta, a pureza da geometria com a rugosidade da natureza.






FICHA TÉCNICA
arquitetos
Beatriz Martinhão e Rafael Neves
2011
local: Cotia-SP
Residência Horto Florestal_01
Residência com 115m² de área útil implantada em terreno de 150m².
Por conta da dimensão justa do lote houve a preocupação em organizar o programa de modo que a casa pudesse ser disposta sem ocupar todo o terreno. Verticalizando os ambientes foi possível liberar uma generosa área livre na parte posterior do lote.
O projeto setorizou os ambientes em dois níveis. O pavimento superior conta com uma suíte, dois dormitórios e um banheiro social.
No térreo localiza-se a sala de estar e jantar, lavabo, cozinha, varanda gourmet e área de serviço.

FICHA TÉCNICA
arquitetos
Beatriz Martinhão e Rafael Neves
projeto_2010
obra_2011
local: Sorocaba-SP
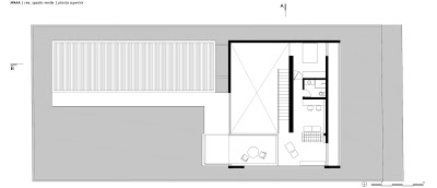
Residência Spazio Verde
Residência com 257,30m² de área útil implantada em terreno de 505m².
Por solicitação do cliente, que possui dois filhos pequeno, a residência deveria em sua maior parte ser térrea e ter visibilidade para todos os cômodos. O projeto buscou trabalhar com o conceito de pavilhões para distribuir o programa no lote.
O pavilhão social localiza-se na parte frontal do lote e acomoda as salas de estar e jantar. Ao lado encontra-se o pavilhão de serviços com a cozinha, área de serviço e sanitário de apoio. O pavilhão íntimo foi posicionado conforme a orientação do sol e conta com três suítes. A frente dele foi deixado um gramado onde os filhos do casal podem brincar sob os olhos da mãe onde quer que ela esteja. No pavimento superior há uma extensão do pavilhão social e conta com uma área externa, sala de estudos e suíte de hóspedes.




FICHA TÉCNICA
arquitetos
Beatriz Martinhão e Rafael Neves
2010
local: Botucatu-SP
Residência Ibiti Royal
Residência com 200,30m² de área útil implantada em terreno de 250m².
O projeto buscou uma implantação diferenciada, com o objetivo de melhorar o posicionamento das aberturas dos dormitórios em relação ao lote. As suítes localizadas no bloco posterior dão vista à lateral do lote, que possui um recuo confortável a fim de garantir uma boa ventilação e insolação aos ambientes. A implantação garantiu a esta face da residência, uma posição privilegiada em relação ao norte geográfico.
Buscou-se funcionalidade do programa com ambientes confortáveis e práticos. O conceito foi de valorizar ao máximo o lote, dispondo uma área de jardim e espaços vazios grandes.
No pavimento térreo encontra-se cozinha , com dois acessos e iluminação zenital, salas de jantar, estar e lavabo, área de serviço e sanitário de serviço. Na parte externa há ainda churrasqueira, um banco de concreto e uma raia de vegetação que poderá ser substituída por uma piscina. O pavimento superior conta com três suítes, um home theater e uma área para escritório.





FICHA TÉCNICA
arquitetos
Beatriz Martinhão e Rafael Neves
2010
local: Sorocaba-SP
Residência Horto Florestal_02





FICHA TÉCNICA
arquitetos
Beatriz Martinhão e Rafael Neves
2010
local: Sorocaba-SP
Residência São Bento





FICHA TÉCNICA
arquitetos
Beatriz Martinhão e Rafael Neves
2009
local: São Bento do Sapucaí-SP



























































